Luminoso apartamento con terraza, parking y trastero
Apartamento · Venta
- Habitaciones dobles: 1
- Baños: 1
- Construidos: 54m2
- Terraza: 1m2
- Calificación energética: En proceso
- Buen estado
- Apartamento
- Mogán Arguineguín, Loma Dos
- Aire acondicionado
- Piscina comunitaria
- Todo exterior
- Armarios empotrados
- Electrodomésticos
- Parking
- Terraza
- Videoportero
Moderno apartamento de un dormitorio ubicado en planta alta, con vistas a la piscina y terraza orientada al sur, ideal para disfrutar del sol y del entorno. La vivienda cuenta con aire acondicionado en salón y dormitorio, cocina reformada de diseño, plaza de parking en garaje comunitario y amplio trastero.
El apartamento destaca por su diseño moderno y luminoso, con un salón de concepto abierto que se integra de manera natural con la cocina, creando un espacio acogedor. La terraza se percibe como una prolongación del interior y dispone de toldo superior y frontal, que aportan sombra y mayor intimidad, siendo perfecta para momentos de relax o reuniones sociales.
Monte Carrera es una comunidad privada y tranquila, con amplios jardines cuidadosamente mantenidos y vecinos respetuosos. La piscina comunitaria climatizada añade un atractivo extra, ofreciendo un ambiente vacacional y relajante durante todo el año. Además, el residencial dispone de ascensor y servicio de recepción, que facilita el contacto con proveedores de servicios locales. Los gastos comunitarios incluyen WIFI.
El apartamento se entrega parcialmente amueblado y listo para entrar a vivir. Su ubicación combina la tranquilidad de una zona residencial con la proximidad a playas, restaurantes, cafeterías y servicios, en un entorno soleado y agradable de Gran Canaria.
Esta propiedad representa una oportunidad única para quienes buscan confort, diseño y calidad de vida en un entorno cuidado, disfrutando de todo el encanto de Arguineguín.
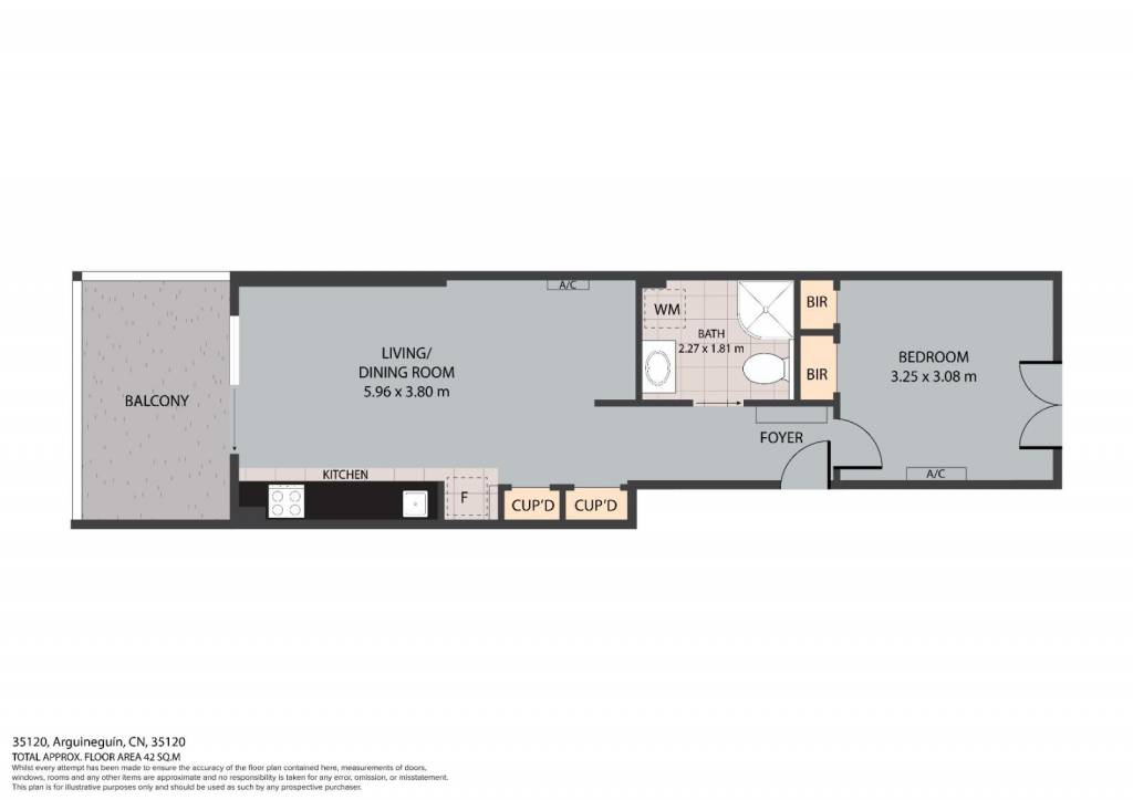
###Distribución
Salón con cocina abierta, un baño, dormitorio y terraza.
###Texto legal
El plano publicado debe ser considerado como croquis orientativo, no como reflejo exacto de la realidad física del inmueble, pudiendo existir inexactitud en el trazado del plano y en las medidas.
Precio no incluye impuestos y gastos de la compraventa. Los más importantes son: Impuesto de Transmisiones Patrimoniales (6,5%), así como los honorarios de Notario, Registro de la Propiedad y gestoría. Generalmente debemos calcular aquí un 8-10% del precio, aunque le entregaremos una estimación detallada para cada propiedad concreta por la que Vd. se interese.
Cambio de divisas
- Libras: 0 GBP
- Rublo Ruso: 0 RUB
- Franco Suizo: 0 CHF
- Yuan Chino: 0 CNY
- Dolar: 0 USD
- Corona Sueca: 0 SEK
- Corona Noruega: 0 NOK
- Enero 0 €
- Febrero 0 €
- Marzo 0 €
- Abril 0 €
- Mayo 0 €
- Junio 0 €
- Julio 0 €
- Agosto 0 €
- Septiembre 0 €
- Octubre 0 €
- Noviembre 0 €
- Diciembre 0 €
Cº
