¿Estás cansado de buscar locales que requieren reformas interminables, gastos imprevistos y meses de angustia esperando encontrar un inquilino que te pague el alquiler?
Local comercial · Venta
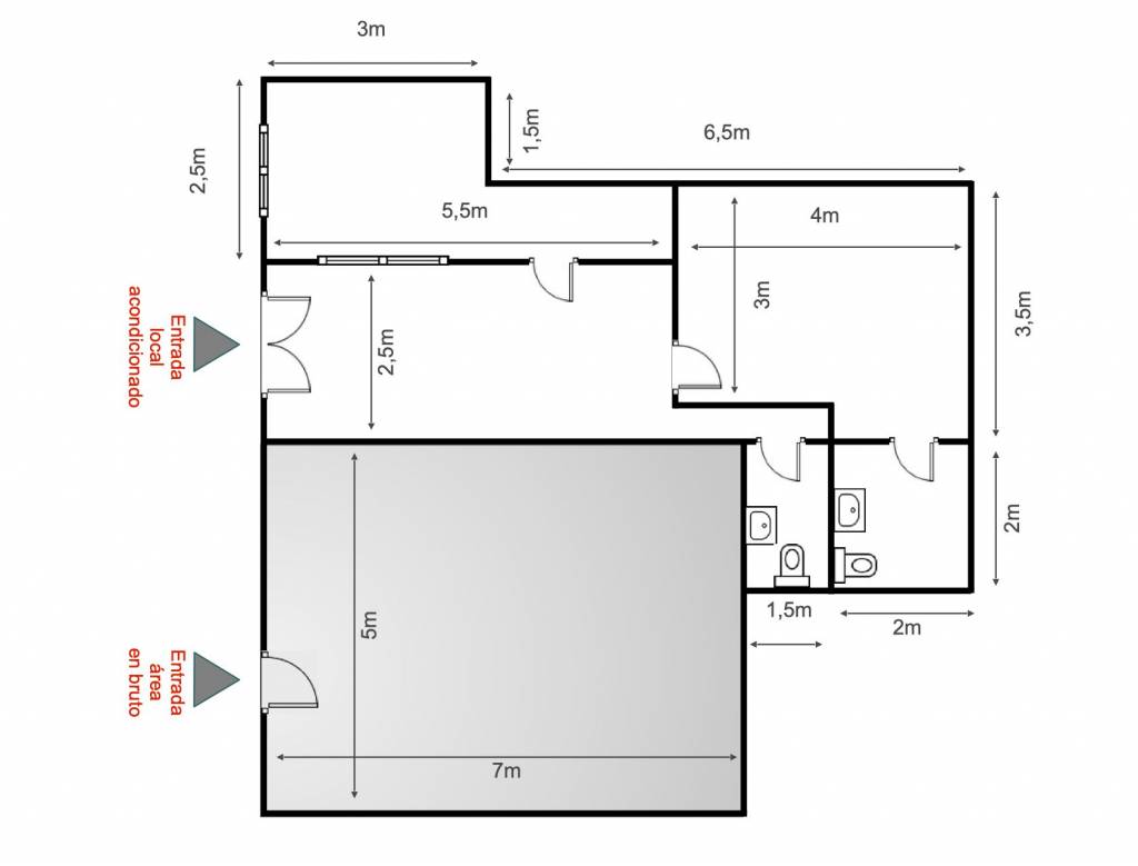
- Aseos: 2
- Construidos: 59m2
- Calificación energética: En proceso
- Buen estado
- Local comercial
- Granada Alcampo
- Todo exterior
Imagina por un momento comprar una propiedad hoy y que mañana mismo ya te esté ingresando 400 € en tu cuenta, mientras tienes una segunda mitad completamente a estrenar para montar tu propio negocio (o alquilarla y duplicar tus beneficios).
Este local comercial recién reformado te ofrece exactamente eso: la tranquilidad mental de una rentabilidad inmediata combinada con una flexibilidad absoluta.
Está pensado para darte el máximo beneficio económico con cero estrés:
El secreto del Dos por Uno (Local dividido estratégicamente): Para que tengas dos espacios totalmente independientes y listos para operar, lo que significa que puedes cobrar el alquiler de una mitad (actualmente a 400€/mes con contrato de 2 años) para pagar tu hipoteca, mientras usas la otra mitad totalmente gratis para tu propio proyecto.
Reforma Integral 100% a estrenar: Con paredes, suelos e instalaciones eléctricas y de agua totalmente nuevas para que no tengas que mover ni un dedo, lo que significa que escaparás del estrés y la pérdida de tiempo de lidiar con obras, ahorrando miles de euros desde el primer minuto.
Altillos de gran altura y aseos privados (en cada local): Para que dispongas de un espacio de almacenaje extra, lo que significa que aprovecharás al máximo cada metro cuadrado, manteniendo la zona principal impecable y proyectando una imagen profesional a tus clientes.
Ubicación estratégica de alta demanda: Situado en una zona con excelente conectividad, metro, autobuses y todos los servicios a un paso, para que cualquier negocio allí tenga tráfico constante, lo que significa que tendrás la total tranquilidad de saber que es un local muy atractivo y fácil de alquilar en el futuro.
Resumen de tu inversión de un vistazo:
Distribución: 1 Local dividido profesionalmente en 2 espacios funcionales e independientes.
Estado: Reforma integral recién terminada (¡Todo a estrenar!).
Rentabilidad Inmediata: Mitad A alquilada (400€/mes garantizados) + Mitad B vacía a tu entera disposición.
No dejes pasar esta oportunidad. Locales que te pagan desde el primer día y que no requieren gastar ni un euro en reformas rara vez salen al mercado.
Llámanos ahora mismo al teléfono del anuncio o envíanos un mensaje para concertar tu visita privada y descubre todo el potencial de esta propiedad.
PD: Recuerda, empezar un nuevo negocio o una inversión suele dar vértigo por los gastos iniciales. Pero gracias al inquilino que ya tienes en una de las mitades, tendrás 400 € extra todos los meses ayudándote a amortizar tu compra o financiar tu propio proyecto desde el minuto uno.
¡Contáctanos ahora antes de que otro inversor inteligente se adelante!
*El PVP indicado no incluye impuestos ni gastos de Escritura. Honorarios agencia no incluidos. Las superficies expresadas en esta página tienen carácter descriptivo y son aproximadas. Los precios pueden ser susceptibles de modificación sin previo aviso.
Cambio de divisas
- Libras: 0 GBP
- Rublo Ruso: 0 RUB
- Franco Suizo: 0 CHF
- Yuan Chino: 0 CNY
- Dolar: 0 USD
- Corona Sueca: 0 SEK
- Corona Noruega: 0 NOK
- Enero 0 €
- Febrero 0 €
- Marzo 0 €
- Abril 0 €
- Mayo 0 €
- Junio 0 €
- Julio 0 €
- Agosto 0 €
- Septiembre 0 €
- Octubre 0 €
- Noviembre 0 €
- Diciembre 0 €
Cº
